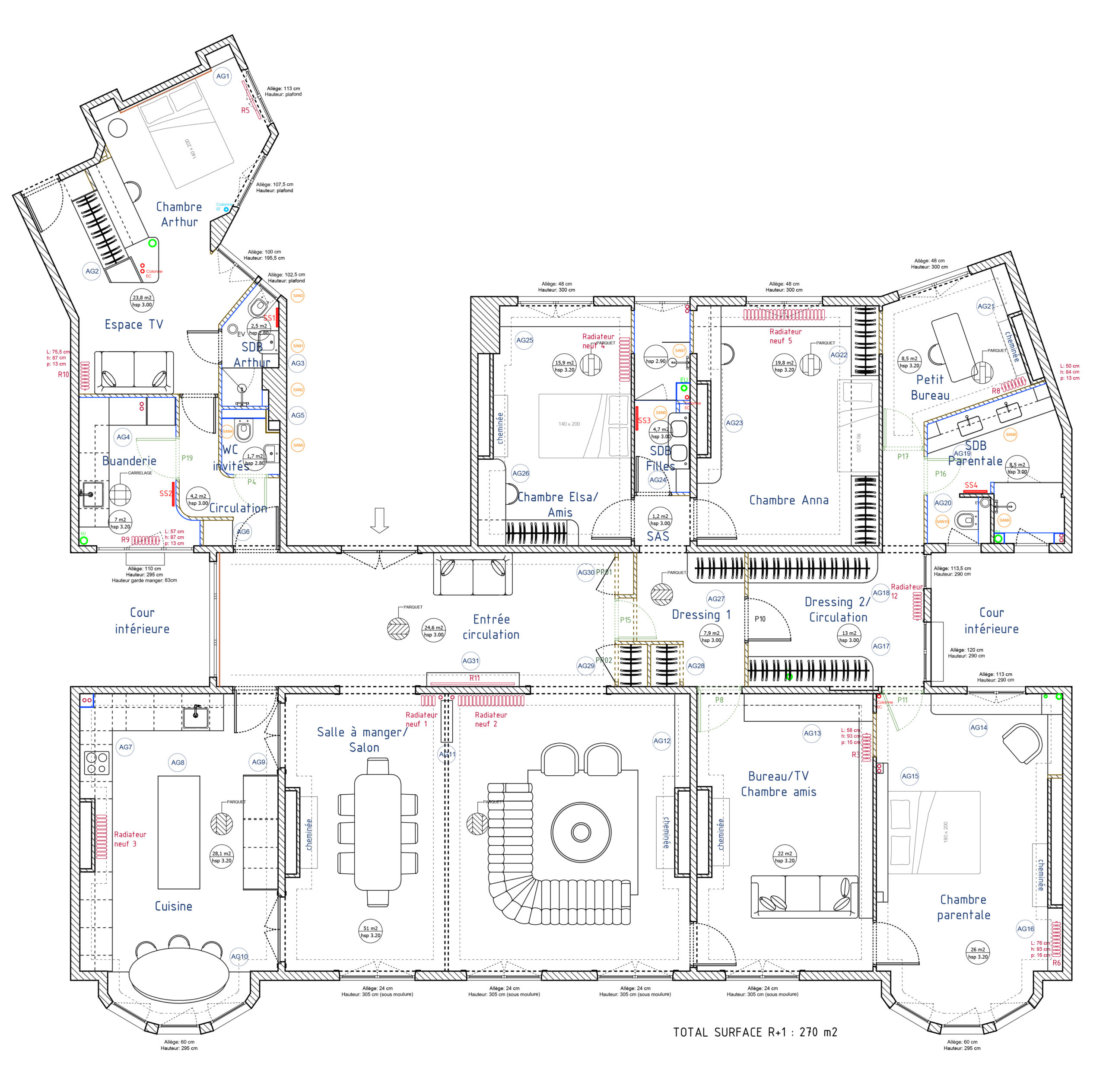
Ce magnifique appartement haussmannien de 270m2 a été entièrement rénové et aménagé.

Les clients, une famille de cinq personnes souhaitaient une cuisine esthétique et pratique restant connectée au séjour sans toute fois être ouverte.

Pour répondre à cette demande le plan a été totalement restructuré par rapport à l’existant. Les arrivées et évacuations d’eau ont été prolongées.

Ainsi une ancienne cuisine de service est devenue une suite chambre/SDB d’adolescent et un des salons de réception, une grande cuisine chaleureuse où toute la famille peut se réunir autour d’une table avec banquette, traitée comme un bow-window.

Appartement Breteuil – Paris

Mission : Conception et suivi de réalisation pour agence Bachmann interior design
Date : 2023
Surface : 270 m2
Client : Privé
Coût des travaux : 650 000 €